Mehrfamilienhaus mit 7 Wohneinheiten und Tiefgarage in Bad Grönenbach Es sind bereits alle Wohnungen verkauft

Die insgesamt 7 hochwertigen Eigentumswohnungen werden ab Frühjahr 2020 in Ortsrandlage von Bad Grönenbach entstehen. Die hellen und praktisch geschnittenen Wohnungen geben Ihnen schon beim Eintreten das Gefühl zuhause angekommen zu sein. Über das Treppenhaus oder den Aufzug, der von der Tiefgarage bis ins Obergeschoss führt, gelangen Sie zu Ihrer Wohnungstür. Um die ruhige Lage genießen zu können, sind alle Wohnungen mit einer Terrasse oder Balkon und großzügigen Fensterfronten ausgestattet. Die 4 PKW-Außenstellplätze sind direkt am Haus positioniert und werden als Carportanlage errichtet. Schon ab Ihrer Haustür können Sie Freizeitaktivitäten in die Natur starten (Radfahren, Spaziergänge, Schwimmen) oder gemütlich Zuhause die Ruhe genießen und trotzdem innerhalb weniger Fuß- und Fahrminuten Grundschule, Kindergarten, Restaurants und verschiedene Einkaufsmöglichkeiten oder das Naturfreibad Bad Clevers im Ort erreichen.

Eckdaten

Kaufpreis ab 210.500 €
Carportstellplätze 4 Carportstellplätze, oberirdisch
Außenstellplätze Außenstellplätze für PKW
Käuferprovision keine
KfW KfW 55-Standard
Heizungsart Pellets
Terrasse Garten mit Sondernutzung im Erdgeschoss
Balkon im Obergeschoss
Baubeginn Frühjahr 2020
geplante Fertigstellung Ende 2021

AUSSENANSICHTEN

ERDGESCHOSS WOHNUNG 1 - verkauft

Gesamt 87,58 qm
 
Diele 11,28 qm
 
Bad 7,00 qm
 
Lebensraum 32,14 qm
 
Schlafen 13,58 qm
 
Zimmer 12,49 qm
 
Abstellraum 3,00 qm
 
Terrasse 1/2 8,10 qm
 

ERDGESCHOSS WOHNUNG 2 - verkauft

Gesamt 93,01 qm
 
Diele 8,29 qm
 
Bad 7,15 qm
 
Lebensraum 29,98 qm
 
Zimmer 12,02 qm
 
Schlafen 15,86 qm
 
Ankleide 5,81 qm
 
Terrasse 1/2 9,04 qm
 

ERDGESCHOSS WOHNUNG 3 - verkauft

Gesamt 81,27 qm
 
Diele 8,29 qm
 
Bad 5,84 qm
 
Lebensraum 31,81 qm
 
Schlafen 18,76 qm
 
Zimmer 1 13,25 qm
 
Terrasse 1/2 3,32 qm
 

Lass die Sonne rein ...

OBERGESCHOSS WOHNUNG 4 - verkauft

Gesamt 93,53 qm
 
Diele 13,82 qm
 
Bad 7,00 qm
 
Lebensraum 31,26 qm
 
Schlafen 12,51 qm
 
Zimmer 1 10,00 qm
 
Zimmer 2 10,39 qm
 
Abstellraum 3,00 qm
 
Balkon 1/2 5,56 qm
 

OBERGESCHOSS WOHNUNG 5 - verkauft

Gesamt 66,98 qm
 
Diele 9,70 qm
 
Bad 5,84 qm
 
Lebensraum 30,26 qm
 
Schlafen 16,08 qm
 
Balkon 1/2 5,10 qm
 

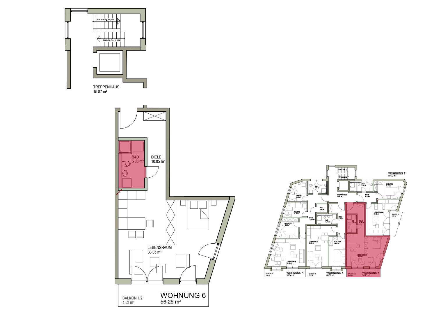
OBERGESCHOSS WOHNUNG 6 - verkauft

Gesamt 56,28 qm
 
Diele 10,05 qm
 
Bad 5,06 qm
 
Lebensraum 36,65 qm
 
Balkon 1/2 4,53 qm
 

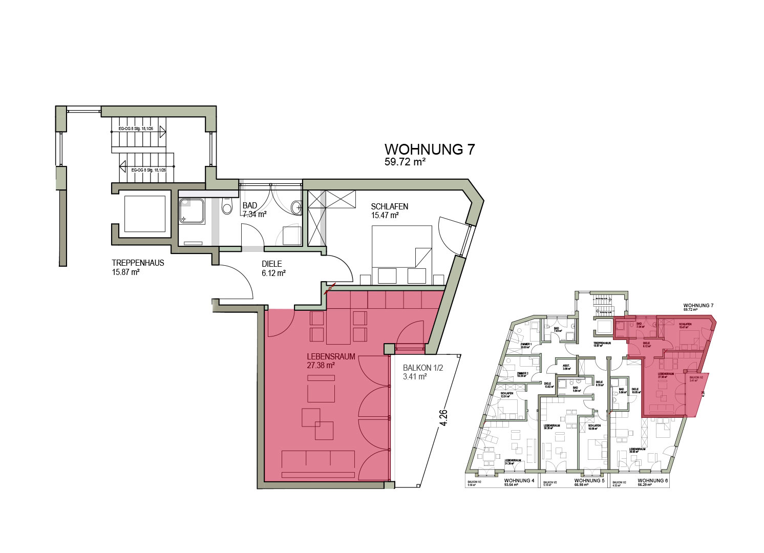
OBERGESCHOSS WOHNUNG 7 - verkauft

Gesamt 59,71 qm
 
Diele 6,12 qm
 
Bad 5,84 qm
 
Lebensraum 27,38 qm
 
Schlafen 15,47 qm
 
Balkon 1/2 3,41 qm
 

Baufortschritt

Lydia Schneider
T. 08334 / 9894939
Vielen Dank!

Ich freue mich über Ihre Nachricht und melde mich in Kürze bei Ihnen.

* Pflichtfelder