2x2 Doppelhaushälften in Boos verkauft
Boos bietet alles, was man im Alltag benötigt und erfreut sich daher zunehmend großer Beliebtheit als Lebensmittelpunkt.
In der c.a. 2.000 Einwohner zählenden Gemeinde finden Sie Ärzte, Banken, Bäcker, Kindergärten, Schulen, Supermärkte, etc. und auch das Freizeitangebot kommt nicht zu kurz. Die wald- und gewässerreiche Umgebung bietet z.B. direkten Zugang zum Iller-Radweg. Der Erholungsfaktor für Jung und Alt ist somit gegeben.
Zudem verfügt die Gemeinde über ein vielseitiges Dorfleben mit zahlreichen Vereinen wie z.B. dem Theaterverein, der Freiwilligen Feuerwehr, dem Heimatverein, der Chorgemeinschaft sowie dem Obst- und Gartenbauverein. Sehenswert ist außerdem die unter Denkmalschutz stehende katholische Pfarrkirche St. Martin in der Ortsmitte.
Boos bietet eine hervorragende Verkehrsanbindung: In ca. 8 km Entfernung erreichen Sie die Autobahn A7 und wenige Kilometer weiter das Autobahnkreuz Memmingen A7/A96. In kürzester Zeit erreichen Sie die Städte Memmingen, Ulm, Kempten, München, Lindau am Bodensee oder die Allgäuer Alpen. Zudem befindet sich der Flughafen Allgäu Airport ca. 13 km Entfernung mit einer attraktiven Auswahl an europäischen Reisezielen.
Eckdaten
Die folgenden Angaben sind ohne Gewähr ...
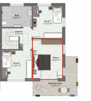
Bauplatz 15 Haus 1 - West - verkauft
| Gesamtwohnfläche | 139,36 qm | |||
| Gesamtnutzfläche (ohne Garage) | 65,53 qm | |||
| Erdgeschoss - Diele | 7,65 qm | |||
| Erdgeschoss - WC | 3,23 qm | |||
| Erdgeschoss - Zimmer | 8,74 qm | |||
| Erdgeschoss - Speis | 3,86 qm | |||
| Erdgeschoss - Küche | 11,08 qm | |||
| Erdgeschoss - Wohnen/Essen | 31,33 qm | |||
| Erdgeschoss - Terrasse 1/2 | 13,08 qm | |||
| Obergeschoss - Galerie | 3,95 qm | |||
| Obergeschoss - Bad | 8,85 qm | |||
| Obergeschoss - Kind 1 | 13,15 qm | |||
| Obergeschoss - Eltern | 16,02 qm | |||
| Obergeschoss - Kind 2 | 11,81 qm | |||
| Obergeschoss - Dachterrasse 1/2 | 6,61 qm | |||
| Keller - Flur | 3,29 qm | |||
| Keller - Technik | 17,89 qm | |||
| Keller - Keller 1 | 33,99 qm | |||
| Keller - Keller 2 | 10,37 qm | |||
Bauplatz 15 Haus 2 - Ost - verkauft
| Gesamtwohnfläche | 139,36 qm | |||
| Gesamtnutzfläche (ohne Garage) | 65,63 qm | |||
| Erdgeschoss - Diele | 7,65 qm | |||
| Erdgeschoss - WC | 3,23 qm | |||
| Erdgeschoss - Zimmer | 8,74 qm | |||
| Erdgeschoss - Speis | 3,86 qm | |||
| Erdgeschoss - Küche | 11,08 qm | |||
| Erdgeschoss - Wohnen/Essen | 31,33 qm | |||
| Erdgeschoss - Terrasse 1/2 | 13,08 qm | |||
| Obergeschoss - Galerie | 3,95 qm | |||
| Obergeschoss - Bad | 8,85 qm | |||
| Obergeschoss - Kind 1 | 13,15 qm | |||
| Obergeschoss - Eltern | 16,02 qm | |||
| Obergeschoss - Kind 2 | 11,81 qm | |||
| Obergeschoss - Dachterrasse 1/2 | 6,61 qm | |||
| Keller - Flur | 3,29 qm | |||
| Keller - Technik | 17,85 qm | |||
| Keller - Keller 1 | 33,99 qm | |||
| Keller - Keller 2 | 10,50 qm | |||
Bauplatz 16 Haus 1 - West - verkauft
| Gesamtwohnfläche | 139,36 qm | |||
| Gesamtnutzfläche (ohne Garage) | 65,53 qm | |||
| Erdgeschoss - Diele | 7,65 qm | |||
| Erdgeschoss - WC | 3,23 qm | |||
| Erdgeschoss - Zimmer | 8,74 qm | |||
| Erdgeschoss - Küche | 11,08 qm | |||
| Erdgeschoss - Speis | 3,86 qm | |||
| Erdgeschoss - Wohnen/Essen | 31,33 qm | |||
| Erdgeschoss - Terrasse 1/2 | 13,08 qm | |||
| Obergeschoss - Galerie | 3,95 qm | |||
| Obergeschoss - Bad | 8,85 qm | |||
| Obergeschoss - Kind 1 | 13,15 qm | |||
| Obergeschoss - Eltern | 16,02 qm | |||
| Obergeschoss - Kind 2 | 11,81 qm | |||
| Obergeschoss - Dachterrasse 1/2 | 6,61 qm | |||
| Keller - Flur | 3,29 qm | |||
| Keller - Technik | 17,89 qm | |||
| Keller - Keller 1 | 33,99 qm | |||
| Keller - Keller 2 | 10,37 qm | |||
Bauplatz 16 Haus 2 - Ost - verkauft
| Gesamtwohnfläche | 139,36 qm | |||
| Gesamtnutzfläche (ohne Garage) | 65,63 qm | |||
| Erdgeschoss - Diele | 7,65 qm | |||
| Erdgeschoss - WC | 3,23 qm | |||
| Erdgeschoss - Zimmer | 8,74 qm | |||
| Erdgeschoss - Speis | 3,86 qm | |||
| Erdgeschoss - Küche | 11,08 qm | |||
| Erdgeschoss - Wohnen/Essen | 31,33 qm | |||
| Erdgeschoss - Terrasse 1/2 | 13,08 qm | |||
| Obergeschoss - Galerie | 3,95 qm | |||
| Obergeschoss - Bad | 8,85 qm | |||
| Obergeschoss - Kind 1 | 13,15 qm | |||
| Obergeschoss - Eltern | 16,02 qm | |||
| Obergeschoss - Kind 2 | 11,81 qm | |||
| Obergeschoss - Dachterrasse 1/2 | 6,61 qm | |||
| Keller - Flur | 3,29 qm | |||
| Keller - Technik | 17,85 qm | |||
| Keller - Keller 1 | 33,99 qm | |||
| Keller - Keller 2 | 10,50 qm | |||