Reiheneckhaus in Memmingen Kreisauer Straße

In attraktiver Architektur entstehen in der Stadt Memmingen diese drei Reihenhäuser. Aufgrund ihrer zentralen Wohnlage sind die Autobahnenanschlüsse A7 und A96 in naher Umgebung. Außerdem sind Altstadt, Einkaufsmöglichkeiten, Schulen und vieles mehr in wenigen Minuten zu erreichen.

Die Terrassen im Erdgeschoss, Balkone im Obergeschoss laden zur seelischen Entspannung und Erholung ein. Die 3-fach verglasten Fenster, Videosprechanlagen und elektrische Rolläden sind nur wenige Dinge, die Ihr Wohlgefühl steigern lassen. Bei Sonderwünschen stehen wir Ihnen gerne beiseite und unterstützen Sie um Ihren Wohntraum noch schöner zu gestalten!

Eckdaten

Kaufpreis ab 519.280 €
Käuferprovision keine
KfW KfW 55
Heizungsart Wärmepumpe
Terrasse im Erdgeschoss
Balkon im Obergeschoss
Baubeginn Frühjahr 2020
geplante Fertigstellung Herbst 2020
Standort Kreisauer Straße
87700 Memmingen

Ausstattung

 

  • Video-Sprechanlage 
  • Ausführung Fenster: Kunststofffenster mit 3fach Verglasung

  • Elektrische Rollladen 

  • Balkon: Edelstahlkonstruktion mit Glasfüllungen

  • Innentüren: weiß und mit glatter Oberfläche, Edelstahl Drückergarnitur 

  • Wohnungseingangstüren: weiß und mit glatter Oberfläche, Edelstahl Drückergarnitur

  • Treppenhausbelag in Naturstein; Edelstahlgeländerkonstruktion 

  • Bäder und WCs mit Fliesen 

  • Wohnräume in Parkett, Vinyl oder Laminat ausführbar 

  • Fußbodenheizung mit Einzelraumsteuerung (Raumthermostate) 

  • Sanitärausstattung in gehobener Qualität 

 

Außenansichten

Hier sehen Sie die Ansichten aller drei Reihenhäuser.

Erdgeschoss

Gesamt 56,85 qm
Kochen 14,79 qm
Diele 8,72 qm
WC 2,80 qm
Abstellraum 1,93 qm
Wohnen/Essen 24,82 qm

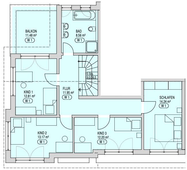
Obergeschoss

Gesamt 78,67 qm
Bad 8,56 qm
Flur 11,95 qm
Kind 1 12,81 qm
Kind 2 13,17 qm
Kind 3 12,20 qm
Schlafen 14,24 qm
Balkon 1/2 11,48 qm

Kellergeschoss

Technik 19,11 qm
Flur 5,36 qm
Keller 1 9,27 qm
Keller 2 24,82 qm

Baufortschritt

Lydia Schneider
T. 08334 / 9894939
Vielen Dank!

Ich freue mich über Ihre Nachricht und melde mich in Kürze bei Ihnen.

* Pflichtfelder