11 Eigentumswohnungen in Mindelheim Rechbergstraße

In ansprechender Architektur entsteht in Mindelheim eine Wohnanlage mit 11 hochwertigen Eigentumswohnungen. Die 2 - 4 Zimmerwohnungen mit 57 qm - 131 qm bieten großzügige Balkone/ Sonnenterrassen. Der Großteil der Wohnungen sind über eine Aufzugsanlage barrierefrei von der Tiefgarage bis zum Dachgeschoss erreichbar. Die Ausstattung Ihrer Wohnung erfolgt nach Ihren Wünschen und Vorstellungen auf Basis der Baubeschreibung. Sonderwünsche sind gerne nach Absprache möglich. Die Pelletheizung als regenerative und effiziente Heizungsart, Fenster mit 3-fach-Verglasung und elektrische Rollläden, dezentrale Lüftung -optional-, sowie die Fußbodenheizung mit Einzelraumsteuerung, sind nur einige Annehmlichkeiten, welche Ihr Wohngefühl steigen lassen. Terrassen und Balkone, sowie das Gartensondernutzungsrecht der Erdgeschosswohnungen laden zum Entspannen ein. Das Gesamtkonzept besticht durch das villenartige Erscheinungsbild.

Eckdaten

Kaufpreis ab 209.000 €
Garagenstellplätze ab 19.000€
Außenstellplätze 7.000€
Käuferprovision keine
KfW KfW 55
Heizungsart Pellets
Garten Gartensondernutzungsrecht im Erdgeschoss
Terrasse im Erd- und Dachgeschoss
Balkon im Obergeschoss
Baubeginn September 2018
geplante Fertigstellung Dezember 2019
Standort Rechbergstraße
87719 Mindelheim

Ausstattung

  • Aufzugsanlage
  • Video-Sprechanlage 
  • Ausführung Fenster: Kunststofffenster mit 3fach Verglasung
  • Elektrische Rollladen 
  • Balkon: Edelstahlkonstruktion mit Glasfüllungen
  • Innentüren: weiß und mit glatter Oberfläche, Edelstahl Drückergarnitur 
  • Wohnungseingangstüren: weiß und mit glatter Oberfläche, Edelstahl Drückergarnitur
  • Treppenhausbelag in Naturstein; Edelstahlgeländerkonstruktion 
  • Bäder und WCs mit Fliesen 
  • Wohnräume in Parkett, Vinyl oder Laminat ausführbar 
  • Fußbodenheizung mit Einzelraumsteuerung (Raumthermostate) 
  • Sanitärausstattung in gehobener Qualität 

Außenansicht

Erdgeschoss Wohnung 1

Gesamt 68,54 qm
Diele 9,26 qm
Bad 6,08 qm
Kochen 5,50 qm
Wohnen/Essen 20,13 qm
Schlafen 13,91 qm
Abstellraum 2,76 qm
Terrasse 1 1/2 8,45 qm
Terrasse 2 1/2 2,44 qm

Erdgeschoss Wohnung 2

Gesamt 62,45 qm
Diele 8,82 qm
Bad 6,65 qm
Kochen 4,86 qm
Wohnen/Essen 15,75 qm
Schlafen 15,22 qm
Abstellraum 2,70 qm
Terrasse 1/2 8,45 qm

Erdgeschoss Wohnung 3

Gesant 61,18 qm
Diele 9,09 qm
Bad 5,17 qm
Kochen 5,57 qm
Wohnen/Essen 20,50 qm
Schlafen 11,64 qm
Terrasse 1/2 9,20 qm

Erdgeschoss Wohnung 4

Gesamt 97,25 qm
Diele 10,42 qm
Bad 7,39 qm
Kochen 6,66 qm
Wohnen/Essen 25,57 qm
Schlafen 16,93 qm
Kind 9,47 qm
Terrasse 1 1/2 7,02 qm
Terrasse 2 1/2 13,80 qm

Erdgeschoss Wohnung 5

Gesamt 64,91 qm
Diele 7,07 qm
Bad 5,88 qm
Kochen 4,66 qm
Wohnen/Essen 23,60 qm
Schlafen 14,96 qm
Abstellraum 2,30 qm
Terrasse 1/2 6,44 qm

Ober- und Dachgeschoss Maisonette-Wohnung 6

Gesamt 93,03 qm
Diele OG 7,33 qm
Duschbad OG 5,18 qm
Masterbad DG 15,93 qm
Kochen OG 4,88 qm
Wohnen/Essen OG 25,37 qm
Schlafen DG 16,90 qm
Kind OG 10,34 qm
Abstellraum 1,08 qm
Balkon OG 1/2 3,06 qm
Loggia 1/2 2,95 qm

Ober- und Dachgeschoss Maisonette-Wohnung 7

Gesamt 88,73 qm
Diele OG 4,13 qm
Duschbad OG 4,73 qm
Masterbad DG 15,93 qm
Kochen OG 5,18 qm
Wohnen/Essen OG 25,17 qm
Schlafen DG 16,90 qm
Kind OG 9,59 qm
Abstellraum OG 1,08 qm
Balkon OG 1/2 3,06 qm
Loggia DG 1/2 2,95 qm

Obergeschoss Wohnung 8

Gesamt 57,34 qm
Diele 9,09 qm
Bad 5,17 qm
Kochen 5,57 qm
Wohnen/Essen 20,50 qm
Schlafen 11,64 qm
Balkon 1/2 5,37 qm

Obergeschoss Wohnung 9

Gesamt 87,69 qm
Diele 10,42 qm
Bad 7,39 qm
Kochen 6,66 qm
Wohnen/Essen 25,57 qm
Kind 9,47 qm
Balkon 1 1/2 7,16 qm
Schlafen 16,93 qm
Balkon 2 1/2 4,10 qm

Obergeschoss Wohnung 10

Gesamt 64,47 qm
Diele 7,07 qm
Bad 5,88 qm
Kochen 5,76 qm
Wohnen/Essen 23,61 qm
Schlafen 13,41 qm
Abstellraum 2,30 qm
Balkon 1/2 6,44 qm

Dachgeschoss Wohnung 11

Gesamt 131,08 qm
Diele 13,43 qm
Bad 11,95 qm
WC 3,30 qm
Kochen 10,20 qm
Schlafen 23,44 qm
Gast 6,97 qm
Hauswirtschaftsraum 3,30 qm
Loggia 1-3 1/2 2,95 qm
Dachterrasse 1/2 30,34 qm

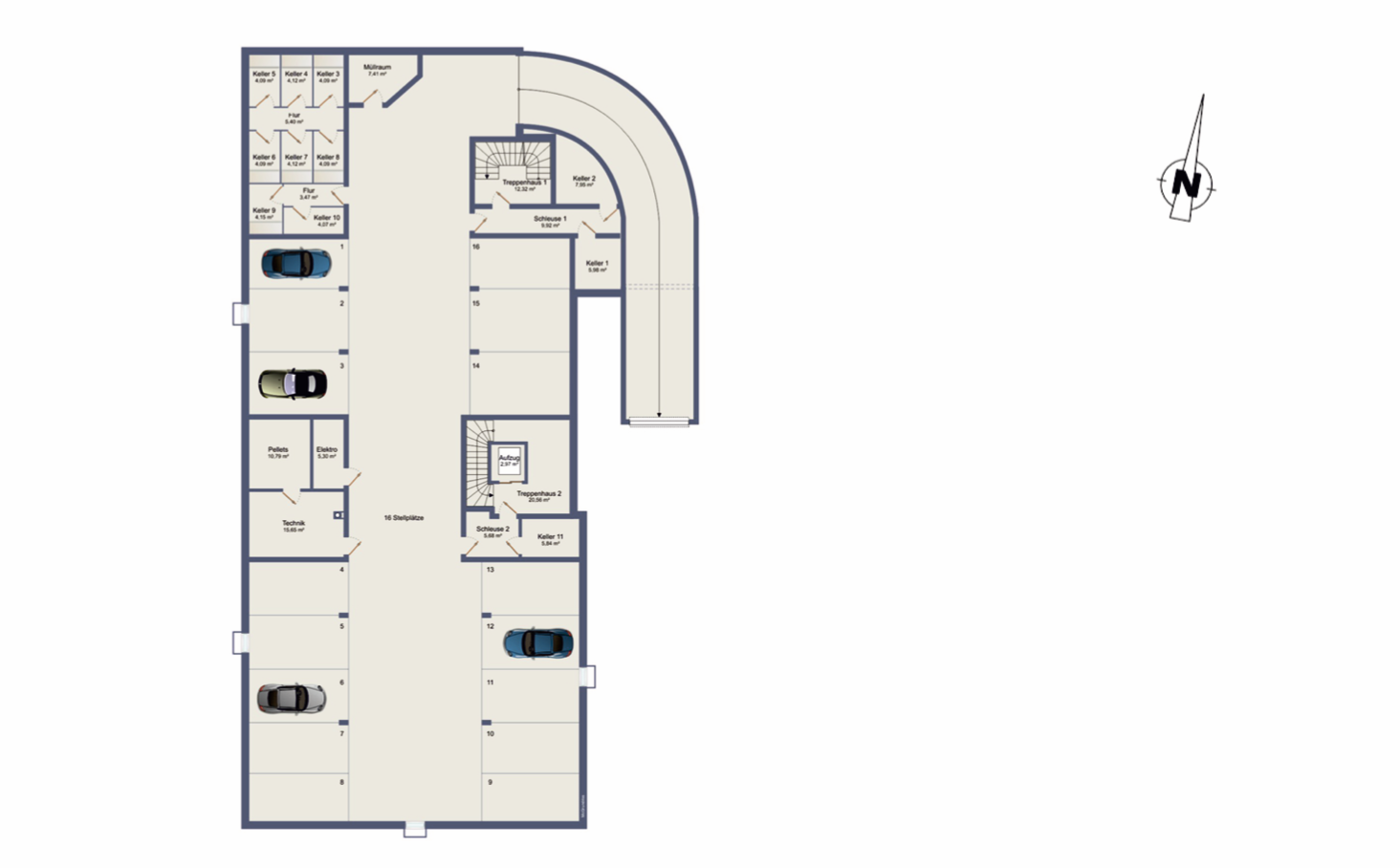
Kellergeschoss und Tiefgarage

Keller 1-11 4,70 qm
Elektro 5,30 qm
Pellets 10,79 qm
Technik 15,65 qm
Müllraum 7,41 qm

Baufortschritt

Lydia Schneider
T. 08334 / 9894939
Vielen Dank!

Ich freue mich über Ihre Nachricht und melde mich in Kürze bei Ihnen.

* Pflichtfelder