Mehrfamilienhaus - Finkenweg, Kempten Modern wohnen. Natürlich leben.
In diesem Mehrfamilienhaus sind die Wohnungen nachhaltig geplant und werden in ansprechender, zeitloser Architektur mit individuellen Grundrissen realisiert.
Durchdachte Raumaufteilung, helle Wohnbereiche und eine hohe Wohn- und Lebensqualität ist das, was Sie hier finden. Die Erdgeschosswohnungen erhalten jeweils eine Terrasse mit Gartenanteil (Sondernutzungsrecht), während die Wohnungen im Ober- und Dachgeschoss mit großzügigen Balkonen ausgestattet sind. Jede Wohnung verfügt zudem über einen eigenen Kellerraum.
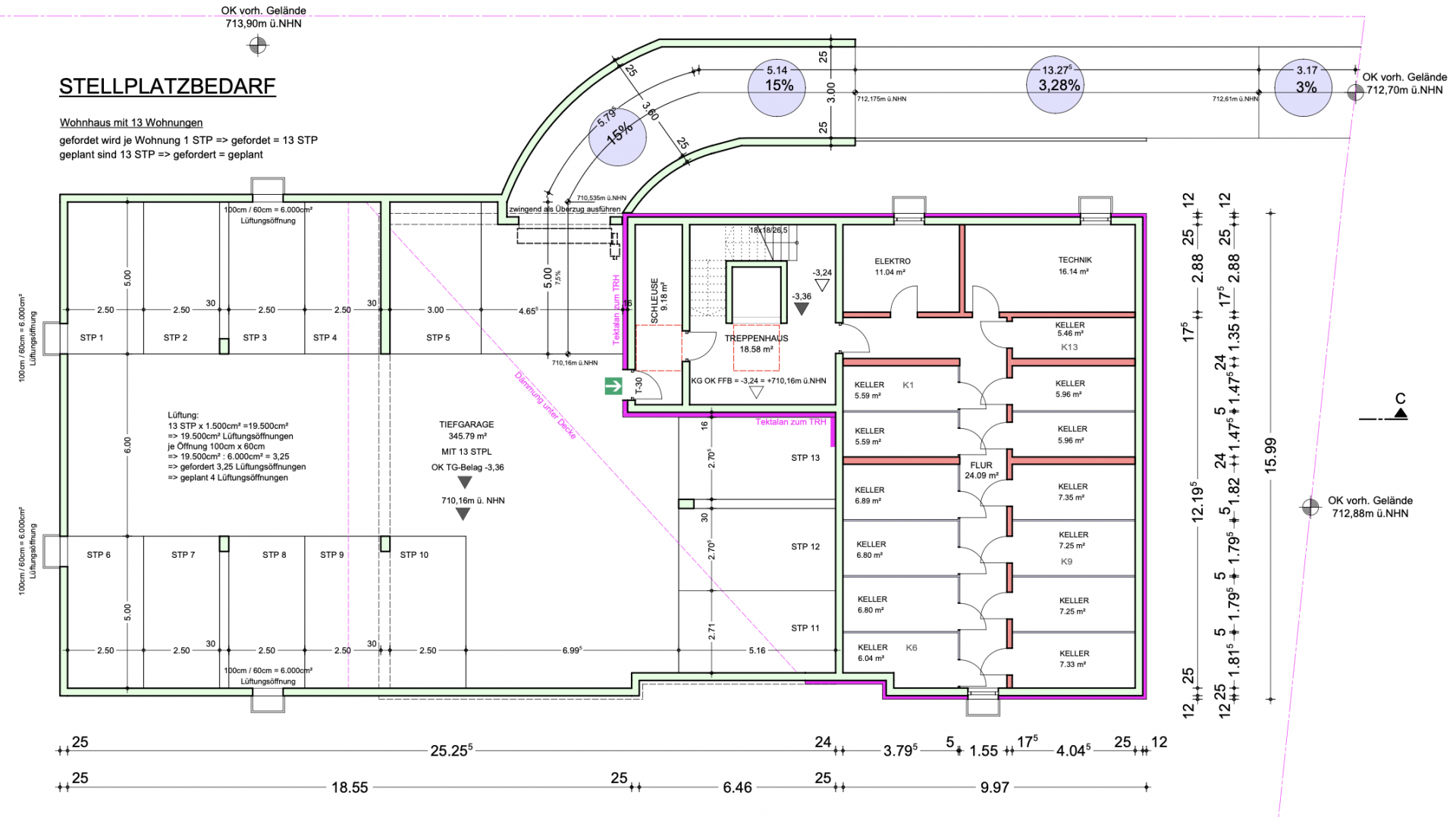
Die Ausstattung erfolgt nach Ihren persönlichen Wünschen und Vorstellungen auf Basis der Bau- und Leistungsbeschreibung – Sonderwünsche sind selbstverständlich nach Absprache möglich. Moderne Technik und hochwertige Materialien sorgen für höchsten Wohnkomfort: eine effiziente Luft-Wasser-Wärmepumpe als regenerative Heizungsart, Fenster mit 3-fach-Verglasung, elektrische Rollläden sowie eine Fußbodenheizung mit Einzelraumsteuerung sind nur einige der vielen Annehmlichkeiten, die Ihr neues Zuhause auszeichnen. Ihren Pkw parken Sie bequem und sicher in der hauseigenen Tiefgarage.
Wohnung 1 - Erdgeschoss
Diese gemütliche 2-Zimmer-Wohnung mit ca. 61,46 m² und Terrasse mit Gartenanteil bietet den idealen Rückzugsort zum Wohlfühlen – Ihr persönlicher Wohn(t)raum im Grünen.
| Diele | 5,46 qm | |||
| Bad | 6,90 qm | |||
| Abstellraum | 2,27 qm | |||
| Kochen | 6,73 qm | |||
| offener Wohnbereich | 21,14 qm | |||
| Schlafen | 13,79 qm | |||
| Terrasse (1/2) mit eigenem Gartenanteil (Sondernutzungsrecht) | 5,17 qm |
Wohnung 2 - Erdgeschoss
Hier genießen Sie Sonne pur: Eine großzügige 2-Zimmer-Wohnung mit ca. 72,62 m² und sonniger Südwest-Terrasse mit Gartenanteil – perfekt zum Entspannen und Genießen.
| Garderobe | 8,19 qm | |||
| Diele | 7,61 qm | |||
| Abstellraum | 2,28 qm | |||
| Bad | 6,49 qm | |||
| Schlafen | 13,04 qm | |||
| Kochen | 6,96 qm | |||
| offener Wohnbereich | 21,33 qm | |||
| Terrasse (1/2) mit eigenem Gartenanteil (Sondernutzungsrecht) | 6,72 qm |
Wohnung 3 - Erdgeschoss
Diese helle Erdgeschosswohnung mit ca. 73,6 m² besticht durch ihre sonnige Südausrichtung und den schönen Garten – ein Wohn(t)raum mit Urlaubsfeeling.
| Diele | 3,69 qm | |||
| Bad | 6,80 qm | |||
| Abstellraum | 2,84 qm | |||
| Kochen | 4,09 qm | |||
| offener Wohnbereich | 31,59 qm | |||
| Schlafen | 14,72 qm | |||
| Terrasse (1/2) mit eigenem Gartenanteil (Sondernutzungsrecht) | 9,86 qm |
Wohnung 4 - Erdgeschoss
Diese 2-Zimmer-Wohnung mit ca. 72,62 m², Terrasse und Gartenanteil lässt Wohnträume Wirklichkeit werden.
| Garderobe | 8,19 qm | |||
| Diele | 7,61 qm | |||
| Abstellraum | 2,28 qm | |||
| Bad | 6,49 qm | |||
| Kochen | 6,96 qm | |||
| offener Wohnbereich | 21,33 qm | |||
| Schlafen | 13,04 qm | |||
| Terrasse (1/2) mit eigenem Gartenanteil (Sondernutzungsrecht) | 6,72 qm |
Wohnung 5 - Erdgeschoss
Ein Ort zum Ankommen und Wohlfühlen: 2 Zimmer auf ca. 61,46 m² mit Terrasse und Garten – ideal für alle, die das Grüne lieben.
| Diele | 5,46 qm | |||
| Bad | 6,90 qm | |||
| Abstellraum | 2,27 qm | |||
| Kochen | 6,73 qm | |||
| offener Wohnbereich | 21,14 qm | |||
| Schlafen | 13,79 qm | |||
| Terrasse (1/2) mit eigenem Gartenanteil (Sondernutzungsrecht) | 5,17 qm |
Wohnung 6 - Obergeschoss
Diese charmante 2-Zimmer-Wohnung im Obergeschoss überzeugt mit ca. 61,46 m² Wohnfläche und einem Balkon mit herrlichem Ausblick – Ihr Wohn(t)raum über den Bäumen.
| Diele | 5,46 qm | |||
| Bad | 6,90 qm | |||
| Abstellraum | 2,27 qm | |||
| Kochen | 6,73 qm | |||
| offener Wohnbereich | 21,14 qm | |||
| Schlafen | 13,79 qm | |||
| Balkon (1/2) | 5,17 qm |
Wohnung 7 - Obergeschoss
Sonne, Licht und Raumgefühl: Eine großzügige 2-Zimmer-Wohnung mit ca. 72,62 m², Balkon und Südwest-Ausrichtung – perfekt für stilvolles Wohnen.
| Garderobe | 8,19 qm | |||
| Diele | 7,61 qm | |||
| Abstellraum | 2,28 qm | |||
| Bad | 6,49 qm | |||
| Kochen | 6,96 qm | |||
| offener Wohnbereich | 21,33 qm | |||
| Schlafen | 13,04 qm | |||
| Balkon (1/2) | 6,72 qm |
Wohnung 8 - Obergeschoss
Diese helle 2-Zimmer-Wohnung mit ca. 73,6 m² begeistert durch ihre Südausrichtung und den einladenden Balkon – hier lässt sich das Leben genießen.
| Diele | 3,69 qm | |||
| Bad | 6,80 qm | |||
| Abstellraum | 2,84 qm | |||
| Kochen | 4,09 qm | |||
| offener Wohnbereich | 31,59 qm | |||
| Schlafen | 14,72 qm | |||
| Balkon (1/2) | 9,86 qm |
Wohnung 9 - Obergeschoss
Ein Zuhause voller Licht und Lebensfreude: 2 Zimmer, ca. 72,62 m² und ein sonniger Balkon machen diese Wohnung zum echten Wohn(t)raum.
| Garderobe | 8,19 qm | |||
| Diele | 7,61 qm | |||
| Abstellraum | 2,28 qm | |||
| Bad | 6,49 qm | |||
| Kochen | 6,96 qm | |||
| offener Wohnbereich | 21,33 qm | |||
| Schlafen | 13,04 qm | |||
| Balkon (1/2) | 6,72 qm |
Wohnung 10 - Obergeschoss
Diese 2-Zimmer-Wohnung mit ca. 61,46 m² bietet einen durchdachten Grundriss und einen Balkon mit Weitblick – ideal für Singles oder Paare mit Anspruch.
| Diele | 5,46 qm | |||
| Bad | 6,90 qm | |||
| Abstellraum | 2,27 qm | |||
| Kochen | 6,73 qm | |||
| offener Wohnbereich | 21,14 qm | |||
| Schlafen | 13,79 qm | |||
| Balkon (1/2) | 5,17 qm |
Wohnung 11 - Dachgeschoss
Exklusiv und offen gestaltet: 2 Zimmer mit ca. 81,74 m² im Dachgeschoss, Südwest-Ausrichtung und sonnigem Balkon – Ihr Rückzugsort über den Dächern.
| Diele | 2,61 qm | |||
| Bad | 8,00 qm | |||
| Abstellraum | 4,47 qm | |||
| Kochen | 6,87 qm | |||
| offener Wohnbereich | 35,44 qm | |||
| Schlafen | 13,18 qm | |||
| Balkon (1/2) | 11,17 qm |
Wohnung 12 - Dachgeschoss
Ein echtes Highlight: 3-Zimmer-Dachgeschosswohnung mit ca. 85,26 m², Südbalkon und lichtdurchfluteten Räumen – hier werden Wohn(t)räume wahr.
| Diele | 4,07 qm | |||
| Bad | 8,07 qm | |||
| offener Wohnbereich | 24,33 qm | |||
| Kochen | 5,74 qm | |||
| Abstellraum | 4,61 qm | |||
| Schlafen | 12,89 qm | |||
| Kind / Arbeitszimmer | 12,54 qm | |||
| Balkon (1/2) | 13,01 qm |
Wohnung 13 - Dachgeschoss
Weitblick und Wohlgefühl: Diese großzügige 2-Zimmer-Wohnung mit ca. 88,72 m² und Balkon vereint Stil, Licht und Komfort – ein Wohn(t)raum zum Verlieben.
| Diele | 5,19 qm | |||
| Abstellraum | 4,15 qm | |||
| Bad | 8,00 qm | |||
| Kochen | 6,87 qm | |||
| offener Wohnbereich | 35,44 qm | |||
| Schlafen | 17,90 qm | |||
| Balkon (1/2) | 11,17 qm |